Le patrimoine mémoriel des guerres

Mémorial de Haute-Alsace

Dernière modification : 1 février 2020

La Ville de Dannemarie réalise actuellement son projet de Mémorial de Haute-Alsace. L’exposition portera sur la période 1871-1919

MÉMORIAL DE HAUTE-ALSACE

La scénographie du Mémorial de Haute-Alsace porte sur la Grande Guerre, et plus précisément sur la période 1871-1919. La collection exposée est riche de plus de 10 000 pièces (objets, costumes, armes..) et traite de la situation particulière des Alsaciens-Lorrains en cette période.

C’est dans le bâtiment en briques rouges de l’ancien site industriel Peugeot Motocycles (bâtiment historique de l’industrie textile DMC datant de 1924), qu’est abritée la collection du Mémorial de Haute-Alsace. L’usine a fermé ses portes en décembre 2012 et depuis, le site demeurait inoccupé.

L’idée était de redonner vie à cette friche industrielle. Une exposition temporaire portant sur la Grande Guerre avait déjà eu lieu dans le bâtiment et avait connu un franc succès (11 000 visiteurs en 2 ans). La création d’un Mémorial portant sur cette même thématique était donc une évidence.

Le Mémorial est situé en plein cœur des Trois frontières (Allemagne, France et Suisse). La scénographie du Mémorial porte d’ailleurs sur l’histoire commune de ces pays dans le conflit.

Le site se positionne en complémentarité des thèmes déjà traités dans d’autres musées (1870 à Belfort, 1914-1918 dans les Vosges avec le Linge, le Hartmannswillerkopf, le Canon de Zillisheim, le Km0, ….).

Au rez-de-chaussée, en plus de l’exposition permanente, le Mémorial accueillera également des expositions temporaires afin de créer de la nouveauté et de conserver son attractivité. Egalement prévue, l’implantation d’une Winstub fera le bonheur des visiteurs. Enfin, une salle de réunion- conférence de plus de 300 m² sera située au 1er étage.

La Ville de Dannemarie est une commune de plus de 2200 habitants, située au cœur du Sundgau. Elle est connue pour son dynamisme, ses traditions alsaciennes et sa douceur de vivre.

Le Mémorial de Haute-Alsace ouvrira ses portes le 1er juin 2020.

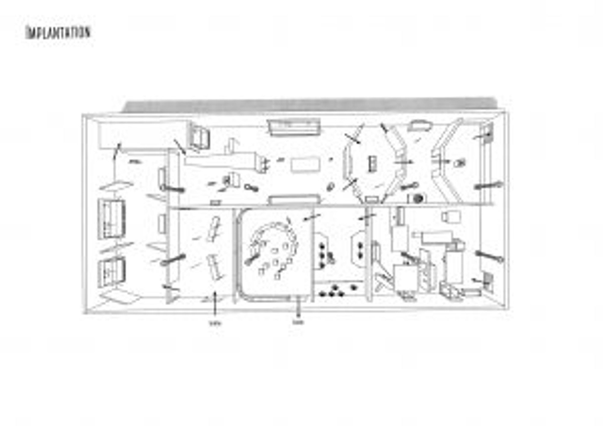
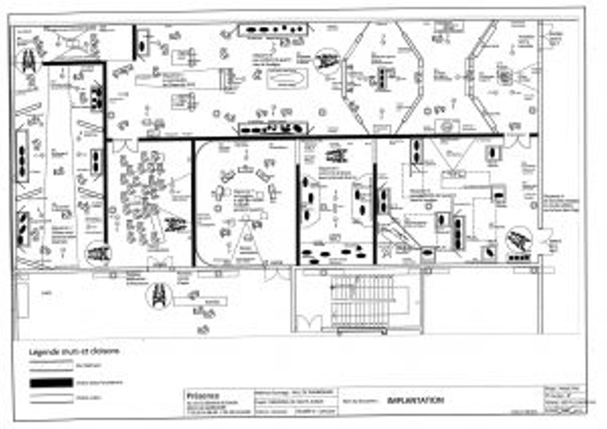
Quelques pages des cahiers scénographiques

Partager la page